Leave a Message

By providing your contact information to Horizon Home Group, your personal information will be processed in accordance with Horizon Home Group's Privacy Policy. By checking the box(es) below, you consent to receive communications regarding your real estate inquiries and related marketing and promotional updates in the manner selected by you. For SMS text messages, message frequency varies. Message and data rates may apply. You may opt out of receiving further communications from Horizon Home Group at any time. To opt out of receiving SMS text messages, reply STOP to unsubscribe.

Thank you for your message. I will be in touch with you shortly.

View My Listings

Property Description

Welcome to one of the most unique and spacious homes in the highly desirable Athmar Park neighborhood! Perched atop an expansive 8,000+ sq ft lot, this exceptional property offers sweeping views of downtown Denver and a rare combination of space, flexibility, and income potential.

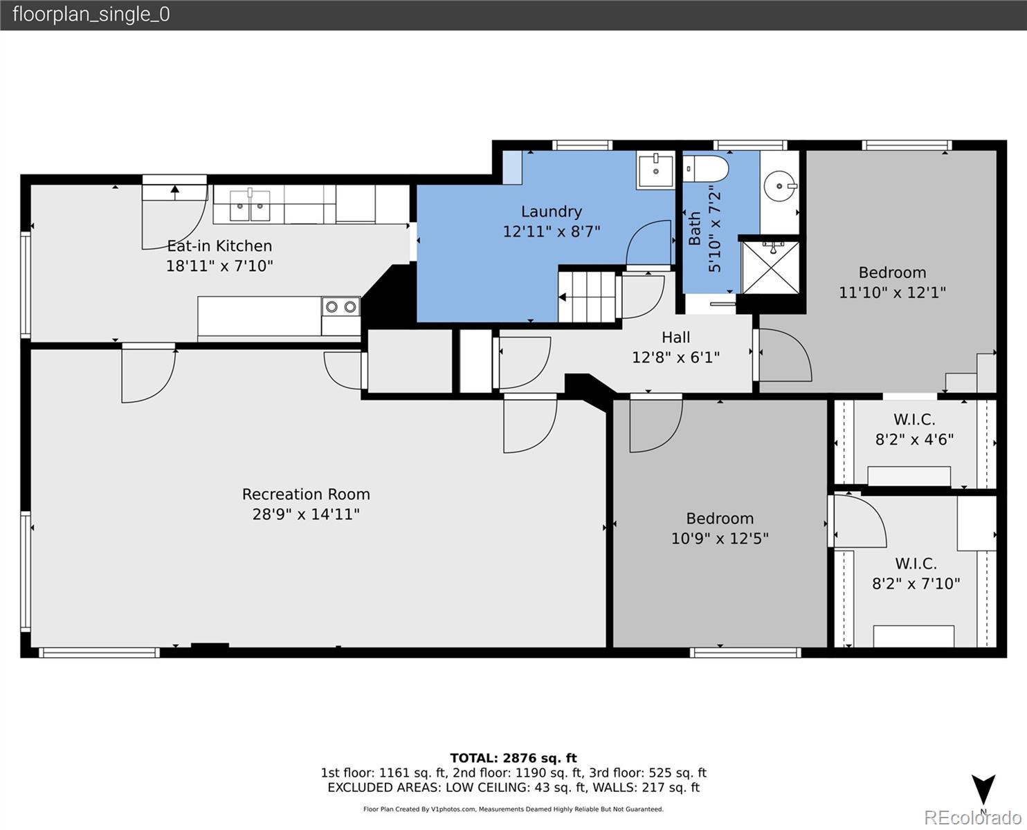
Inside, you'll find 5 bedrooms, 3 baths, and two fully equipped kitchens, perfect for multi-generational living or a potential two-unit setup. The sun-filled main level with panoramic views of downtown features hardwood floors, a generous living space, and a thoughtfully designed kitchen with ample cabinetry, a coffee bar, peninsula seating, and walk out to the backyard patio. A spacious main-floor primary suite offers two closets, a large bathroom, and dedicated laundry, easily adaptable as a bedroom, home office, or additional living space.

Upstairs offers two generously sized bedrooms, ample closet space and a beautiful skylit full bath. The fully finished lower level features its own private entrance, large living area, two bedrooms, a 3/4 bath, full kitchen, and separate laundry, ideal for an in-law suite or potential income-producing rental.
Outside, enjoy an expansive deck with shade sails, a cozy fire pit surrounded by a rock garden, off-street parking for two, a two-car garage with storage, and a Level 2 EV charger. Just steps from Huston Lake Park with easy access to bike paths and transit -- this home truly combines lifestyle, location, and opportunity. Don't miss it! Call Ben Gippert to book your Private Showing today!

Overview

Property Status
For Sale
Lot Size
7,840.8 Sq.Ft.
MLS ID
3292060
Property Type
Residential
Year Built
1933

Features & Amenities

Total Area
3,151 Sq.Ft.
Stories
2
Garage Spaces
2.0
Water Source
Public
Roof
Composition
Lot Features
Level
Parking
Electric Vehicle Charging Station(s), Exterior Access Door
Heat Type
Forced Air, Heat Pump
Air Conditioning
Central Air
Laundry Room
Laundry Closet
Appliances
Dishwasher, Dryer, Gas Water Heater, Oven, Refrigerator, Washer
Other Interior Features
Radon Mitigation System, Smoke Free
Sewer
Public Sewer
Security Features
Carbon Monoxide Detector(s), Smoke Detector(s)
Other Exterior Features
Fire Pit, Private Yard
Elementary School
Goldrick
Middle School
Grant
High School
Abraham Lincoln
School District
Denver 1
Sales Price
$700,000
Real Estate Tax
$3,647/yr
Zoning
E-SU-DX

Downloads

1810 W Exposition Avenue

Schedule a Tour

I would love to help you see this beautiful home! As a full-service brokerage, I can help you tour. Please submit an offer, and answer questions about the buying process.

Thank you

for your interest in 1810 W Exposition Avenue, Denver, CO 80223

1810 W Exposition Avenue
explore in 3d

Mortgage Calculator

Estimate your monthly mortgage payment, including the principal and interest, property taxes, and HOA. Adjust the values to generate a more accurate rate.
$0,000 Your Payment 20 15 65
$0,000 Your Payment
1810 W Exposition Avenue
Navigate

I'm Interested In

1810 W Exposition Avenue

or
  • CallBen Gippert

    License #FA100084664

    (720) 766-5577
  • Past & Present

    My Listing Portfolio

    • 130 W 3rd Avenue Sold

      $1,150,000

      130 W 3rd Avenue, Denver, CO 80223

      Listed by Another Happy Home

      • 4 Beds
      • 3 Baths
      • 2,406 Sq.Ft.
    • 85 S Elati Street Sold

      $1,015,000

      85 S Elati Street, Denver, CO 80223

      Listed by Keller Williams DTC

      • 3 Beds
      • 3 Baths
      • 2,613 Sq.Ft.
    • 25412 E Quarto Place Sold

      $805,000

      25412 E Quarto Place, Aurora, CO 80016

      Listed by RE/MAX Professionals

      • 5 Beds
      • 4 Baths
      • 5,419 Sq.Ft.
    • 231 W Irvington Place Sold

      $732,500

      231 W Irvington Place, Denver, CO 80223

      Listed by Milehimodern

      • 3 Beds
      • 2 Baths
      • 1,433 Sq.Ft.
    • 1810 W Exposition Avenue For Sale

      $700,000

      1810 W Exposition Avenue, Denver, CO 80223

      Listed by Another Happy Home

      • 5 Beds
      • 3 Baths
      • 3,151 Sq.Ft.
    • 125 Crestone Mesa Drive Unit: B Sold

      $685,000

      125 Crestone Mesa Drive Unit: B, Salida, CO 81201

      Listed by Pinon Real Estate Group LLC

      • 3 Beds
      • 2 Baths
      • 1,633 Sq.Ft.
    • 276 Greenwood Drive Sold

      $612,500

      276 Greenwood Drive, Loveland, CO 80537

      Listed by Keller Williams Integrity Real Estate LLC

      • 3 Beds
      • 2 Baths
      • 1,444 Sq.Ft.
    • 2393 S Raleigh Street Sold

      $590,000

      2393 S Raleigh Street, Denver, CO 80219

      Listed by The Agency - Denver

      • 5 Beds
      • 3 Baths
      • 2,090 Sq.Ft.
    • 1675 Raleigh Street Sold

      $583,000

      1675 Raleigh Street, Denver, CO 80219

      Listed by ROCKY MOUNTAIN REAL ESTATE INC

      • 5 Beds
      • 3 Baths
      • 2,352 Sq.Ft.
    • 851 S Pecos Street Sold

      $515,000

      851 S Pecos Street, Denver, CO 80223

      Listed by Another Happy Home

      • 3 Beds
      • 2 Baths
      • 1,263 Sq.Ft.
    • 11746 Elizabeth Circle Sold

      $505,000

      11746 Elizabeth Circle, Thornton, CO 80233

      Listed by Orchard Brokerage LLC

      • 3 Beds
      • 4 Baths
      • 2,089 Sq.Ft.
    • 3704 E 88th Circle Active Under Contract

      $475,000

      3704 E 88th Circle, Denver, CO 80229

      Listed by Another Happy Home

      • 4 Beds
      • 2 Baths
      • 1,728 Sq.Ft.
    • 2100 16th Street Unit: 204 Sold

      $443,000

      2100 16th Street Unit: 204, Denver, CO 80202

      Listed by Another Happy Home

      • 1 Bed
      • 1 Bath
      • 937 Sq.Ft.
    • 2117 S Troy Way Sold

      $385,000

      2117 S Troy Way, Aurora, CO 80014

      Listed by Orchard Brokerage LLC

      • 2 Beds
      • 2 Baths
      • 1,432 Sq.Ft.
    • 433 Birch Road Sold

      $300,000

      433 Birch Road, Crestone, CO 81131

      • 3 Beds
      • 2 Baths
      • 1,008 Sq.Ft.
    View All

    Follow Us On Instagram